zt-kammer / graz
PROJEKTBESCHREIBUNG
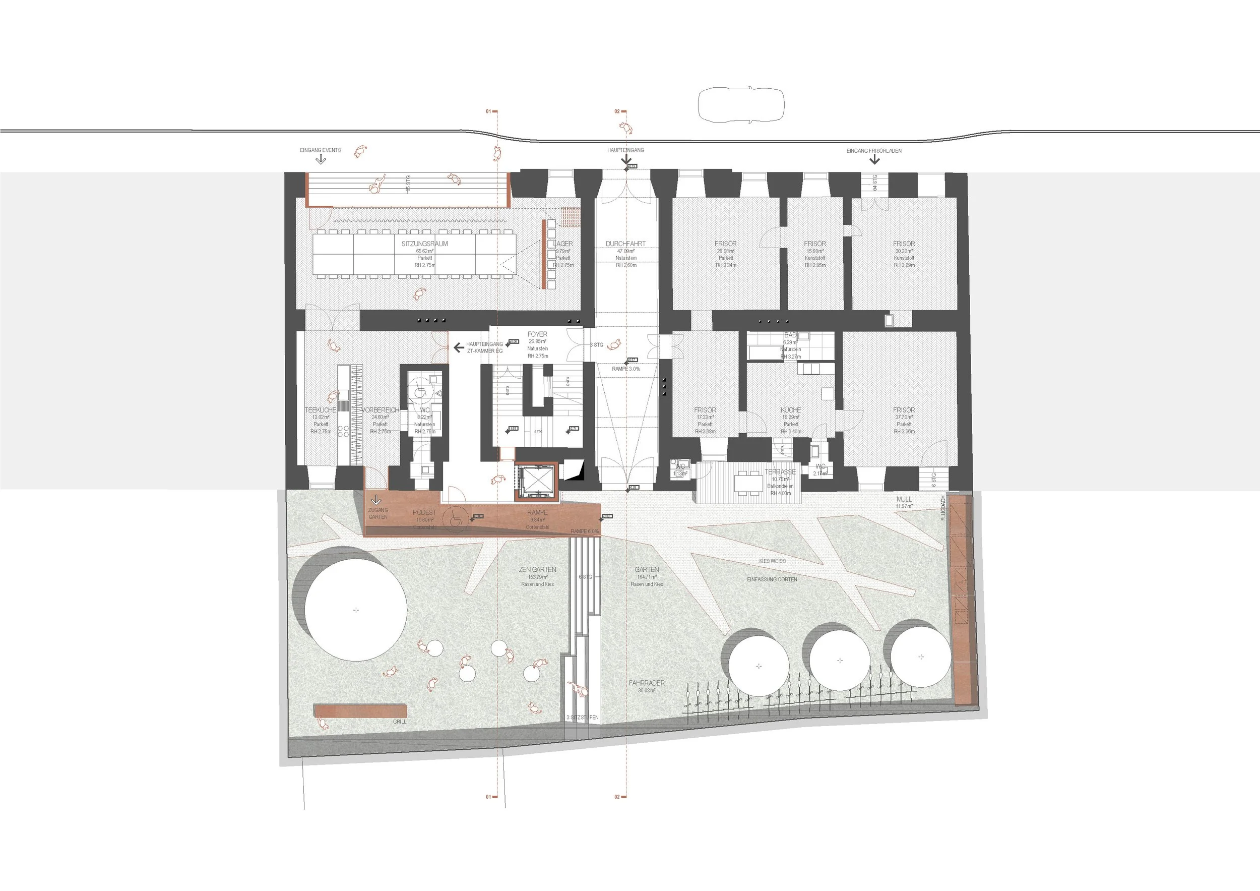
Ein behutsamer Umgang mit der bestehenden Bausubstanz steht im Vordergrund der Entwurfsidee. Die Rückführung der Fassade auf ein schlichtes weisses Erscheinungsbild in Kombination mit zeitgemässen Materialien soll die Interaktion zwischen Tradition und Moderne unterstreichen. Eine repräsentative Öffnung im Erdgeschoss wurde dezent eingefügt. Der neue Auftritt nach aussen hin soll Offenheit gegenüber der Bevölkerung vermitteln. Durch ein grosszügiges öffnen der Fassade erweitert sich der Sitzungssaal hin zum Strassenraum. Über fünf Stufen gelangt man vom Aussenraum in den Innenbereich. Die Fassade kann vollständig geöffnet werden und bei Veranstaltungen verschmelzen der Strassenraum mit dem Innenraum. Die Kammer wird somit zur Bühne und zum Teil der Stadt. Dieses Schaufenster kann auch für Präsentationen von Modellen bzw. Entwürfen genutzt werden.
Die Durchgängigkeit zum Innenhof ist optimal für Veranstaltungen nutzbar. Die Cortenskulptur im Innenhof, welche als rollstuhlgerechte Erschliessung dient, kann auch als erweiterter Aussenraum des Veranstaltungsbereiches der ZT-Kammer wahrgenommen werden. Der Innenhof gliedert sich in zwei Ebenen, wobei die Ankunftsebenen einen öffentlichen Charakter vermittelt. Die tiefer liegende Veranstaltungsebene ist über eine Treppenanlage aus weiss eingefärbten Fertigbetonteilen erreichbar und schafft somit den Charakter eines Amphitheaters.
Im zweiten Obergeschoss werden die bestehenden Strukturen respektiert und akzentuiert. Durch Schaffung eines zentralen Einganges gelangt man unmittelbar in die Erschliessungszone. Durch die Erhaltung der historischen Durchgangstüren entsteht eine weitere bürointerne Erschliessung. Eine Neuerrichtung einer adäquaten Sanitäranlage in allen Geschossen ist vorgesehen. Das dritte Obergeschoss gliedert sich in drei Bereiche. Den öffentlichen Bereich einerseits mit der Erschliessung und den Sanitäranlagen, andererseits mit Foyer bzw. dem Empfang welches als Kommunikationsebene fungiert. Den Konferenzbereich mit Sitzungssaal und Nebenbereichen wie Teeküche und Besprechungszimmer, diese bilden in sich eine autonome Einheit.
Der dritte Bereich ist die Büro Zone welche über das Foyer erschlossen wird.